Imperial House
Kensington High Street W8 £6,250 Per Week

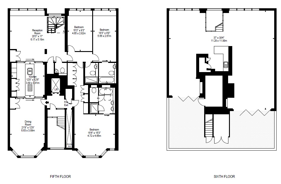
A spectacular and unique new refurbished interior designed duplex Penthouse apartment, set over 3,664 Sq ft, offering three spacious double bedrooms, two en-suite bathrooms, family bathroom, guest WC all within this boutique modern building in the heart

Road
Imperial House
Property Type
Apartment
Bedrooms
3
Nearest Tube
High Street Kensington
Furnished / Unfurnished
4
Bathrooms
3

Enquiries